四川麥克威通風設備有限公司
咨詢熱線:028-82630900
手機:13881905158
傳真:028-82630433
郵箱:mcwell@qq.com
辦公:成都市青羊區光華東三路489號西環廣場2棟
廠址:成都市金堂淮口工業區節能大道(國染大道)
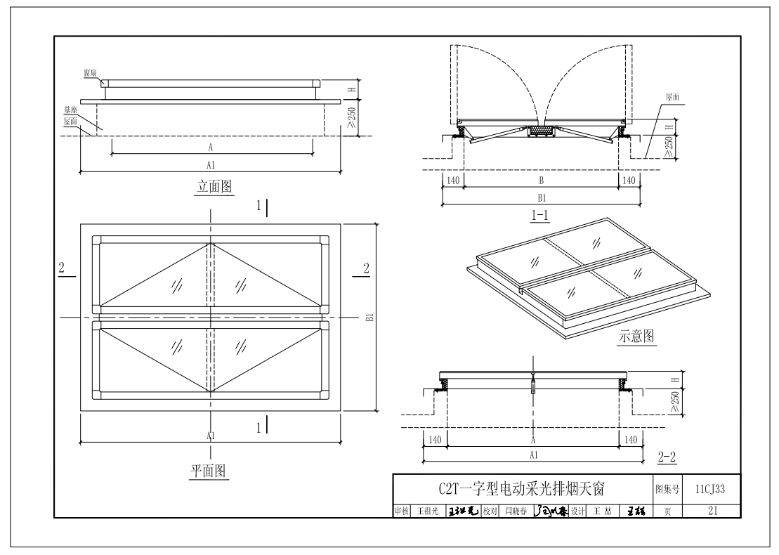
一字形電動采光排煙天窗結構穩固性要點
在新建工業廠房中應用廣泛的一字形電動采光排煙天窗,其結構穩固性至關重要,直接關系到使用安全與壽命。要確保天窗結構穩固,需從多方面著手。
聯結點設計是關鍵。在面臨當地風荷載與雪荷載時,天窗構件聯結點需具備足夠的強度與韌性,請結合項目當地氣候條件進行合理設計。合理設計聯結點的數量、位置及連接方式,能夠有效分散荷載,避免應力集中。在強風地區,經過精心設計的聯結點能防止一字形電動采光排煙天窗被強風掀翻;在多雪地區,也能承受積雪重壓而不發生變形或損壞。
材料配置同樣不容忽視。為滿足耐候性能要求,需選用合適的材料。鋼結構電動排煙天窗框架可采用耐腐蝕性強的鋁合金材質,其不僅質量輕,還能在長期的日曬雨淋、溫度變化中保持穩定,不易生銹、變形。采光面板則可選用高強度、耐老化的PC中空陽光板或FRP采光板,既能保證良好的采光效果,又能抵御紫外線侵蝕與惡劣天氣影響,延長天窗使用壽命。
安裝過程中的聯結點牢固程度直接決定了天窗的整體穩定性。安裝人員必須嚴格按照規范操作,確保每個聯結點都安裝牢固。安裝后,要進行全面的檢查與測試。
只有確保聯結點、材料配置的牢固可靠,才能讓一字形電動采光排煙天窗在關鍵時刻發揮應有的作用,為建筑提供安全保障。
熱點產品 / Hot Products
“推薦閱讀”
- 2024-10-27三分鐘看懂通風采光天窗和消防電動排煙天窗的區別
- 2024-11-21電動屋頂通風天窗是不是只適合安裝于鋼結構屋面
- 2024-12-08必須要知道的一字型排煙天窗的三大優點





川公網安備 51010502010565號
掃一掃更精彩
掃一掃

